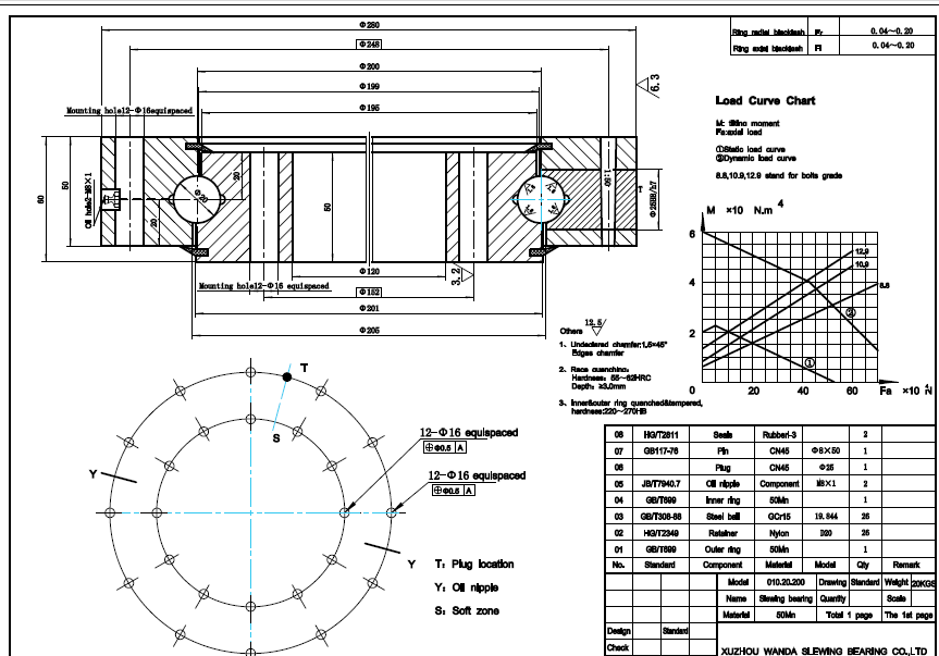
الرسم عبارة عن مجموعة من رسومات التجميع الحاملة. تتضمن الرسومات رسومات تجميع المنتجات ، ووجهات النظر الجزئية للملف الشخصي ، والمتطلبات الفنية للمنتج ، وجداول المعلمة التروس ، وكرات قطع غيار المنتج ، وقوائم قطع الغيار ، وأكثر من ذلك. الرسومات للرجوع إليها فقط.
1. الحجم الكروي لحمل الجليد
2. حلقة تثبيت الحلقة الداخلية والخارجية: حجم المفتاح ، حجم الفتحة ، النوع ، ثقب عمياء ، من خلال الفتحة ، الثقب المضاد ، ثقب الأسلاك ، حجم الخيط ، مستوى الدقة H7-H9 ، قطر مركز الثقب والتسامح
3. حجم الخطوة
4. فتحة وضعية ، ثقب الزيت ، ثقب الرفع ، ثقب دبوس تفتق ، فتحة الكرة ، ثقب تصريف الزيت
5. أخدود ختم ، شكل ختم ، مادة ختم
6. أنماط ومواد الأقفاص والفواصل
7. محمل انزلاق القفز النهائي ، الجريان السطحي ، الخلوص المحوري ، الخلوص الشعاعي ، خشونة
6. الفرق الموازي ، داخل وخارج الاختلاف
7. درجة دقة التروس ، حساب المعلمة ذات الصلة
8. المتطلبات الخاصة بالتخصيص: العرض بالرسومات ، الملاحظات ، مثل المتطلبات الخاصة لثغرات التثبيت ، والتجديد ، مثل موضع ثقب التشحيم وتغيير طريقة التشحيم ، مثل تتصدر معلمات التروس ، مثل التغييرات الفردية في الأبعاد ودرجة كافية.
باختصار ، فإن تأكيد رسم الرسم ليس مداخلًا ، فهناك خطة للمصنع لالتقاط صورة ، وهناك أيضًا الموظفين الفنيين للمشتري للتخصيص وفقًا لاحتياجات معداتهم الخاصة. في هذه العملية ، إذا كانت معلمة معينة خاطئة ، فلا يمكن تجميع المحمل وإلغاء إعادة صياغة العمل ووقت العودة وتكلفة العائد ، يمكن إنتاجها بحرية لمراجعة الرسومات.
عادةً ما يكون الإهمال: ثقب التثبيت ليس ضيقًا ، مما يؤدي إلى عدم تثبيت المحمل ؛ لا يتم حفر فتحة التزييت ، ولا يمكن استخدام ثقب الرفع ، ولا يمكن استخدام رسم خرائط التروس ، وموضع التشحيم ، ولا يمكن استخدام معدات التثبيت من الداخل والخارج ، ولا تتطابق دقة الاستخدام والمعدات يموت ، وكذلك الحدوث المتكرر للضوضاء غير الطبيعية في المحمل.
الصفحة الرئيسية | معلومات عنا | منتجات | أخبار | الوضعية | الدعم | اتصل بنا
