أنت هنا: الصفحة الرئيسية » أخبار

أخبار

تعرف على أحدث المعلومات والأحداث.

HS نوع الدوران الدائري واضعة

ترتبط هذه الأخبار بأخبار HS نوع الدوران الدائري واضعة ، حيث يمكنك التعرف على المعلومات المحدثة في HS نوع الدوران الدائري واضعة ، لمساعدتك على فهم أفضل وتوسيع سوق HS نوع الدوران الدائري واضعة. نظرًا لأن سوق HS نوع الدوران الدائري واضعة يتطور ويتغير ، لذا ننصحك بجمع موقعنا الإلكتروني ، وسنعرض لك آخر الأخبار على أساس منتظم.
  • الدوران حلقة تحمل عادي

    2018-12-05

    واحدة الكرة الصف الحالي الدوران تحمل (https://www.slew-bearing.com/Single-Row-Ball-Internal-Gear-Slewing-Ring-for-Combination-Sewer-Cleaner-pd6849698.html) يتبع اثنين من معايير الصناعة JJ36 ،1-91 "الدوران واضعة لآلات البناء" و JB / T 2300-2011 "الدوران واضعة". في الوقت الحاضر، إلا اقرأ المزيد
  • صف واحد محامل حلقة الكرة الدوران (سلسلة HS)، للرافعات، يدور

    2018-08-07

    في واحدة صف وأربعة الكرة piont الاتصال الدوران حلقة (HTTPS: //) ويتكون من اثنين من seatrings.It يتميز المدمجة في التصميم، خفيف الوزن، والكرات الاتصال مع القناة دائري في أربع نقاط، عبر فيها قوة محورية، قوة شعاعي ولحظة الناتجة قد تكون ولدت simultaneously.It يمكن استخدامها FO اقرأ المزيد
  • حلقة الدوران الدوار

    2018-07-10

    وتحمل الدوران أو الدوران الدوار الدائري هو تأثير المتداول عنصر التناوب التي تدعم عادة ثقيلة لكنه بطيء تحول أو بطيئة تتأرجح محامل load.Slewing غالبا ما تكون مصنوعة مع الأسنان والعتاد متكاملة مع سباق داخلية أو خارجية، وتستخدم لدفع منصة بالنسبة إلى base.As ل اقرأ المزيد
  • أهمية صيانة محمل الدوران الدائري في معدات الرفع

    2018-04-03

    إن محمل الدوران أو حلقة الدوران عبارة عن محمل دوارة لعنصر الدوران أو محمل عادي يدعم عادةً الحمل الثقيل ولكن البطيء أو البطيء التذبذب. يستخدم على نطاق واسع في معدات الرفع ، مثل الرافعة ذات العجلات ، رافعة الزحف ، الرافعة الجسرية ، محمل الدوران الرافعة البرجية (http://www.sl اقرأ المزيد
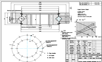
  • الرسم حلقة منحدرة

    2019-01-18

    الرسم عبارة عن مجموعة من رسومات التجميع الحاملة. تتضمن الرسومات رسومات تجميع المنتجات ، ووجهات النظر الجزئية للملف الشخصي ، والمتطلبات الفنية للمنتج ، وجداول المعلمة التروس ، وكرات قطع غيار المنتج ، وقوائم قطع الغيار ، وأكثر من ذلك. الرسومات للرجوع إليها فقط. اقرأ المزيد
  • ~!phoenix_var0!~

    2019-01-18

    ~!phoenix_var0!~ اقرأ المزيد
  • مجموع3الصفحات   إلى الصفحات
  • حدد
سوزهو WanDa الالتفاف ، وإذ تضع المحدودة
خيار آخر لك!
سوزهو WanDa الالتفاف ، وإذ تضع المحدودة
رقم 8 ، طريق Dianchang الشمالي ، منطقة التنمية الصناعية عالية التقنية ، مدينة Xuzhou ، مقاطعة Jiangsu ، الصين.
+ 86-516-83309366 + 86-516-83303986
info@slew-bearing.com
+ 86-133-37939399 + 86-180 2053 7858
الصفحة الرئيسية
اتصل بنا